24 - Southern Charm Building & Construction
Serenity
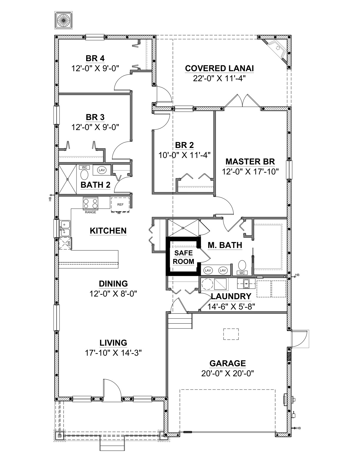
Safe room, fireplace on lanai, integrated sustainability components in design, gas tankless water heater, gas or electric connection for range, gas grill connection at lanai.

Model Address: | 484 Lincoln Ave. Masaryktown, FL 34604 |
| Bedrooms: | 4.0 |
| Bathrooms: | 2.0 |
| Living Sq Ft: | 1859.0 |
| Phone: | 352-397-8839 |
| Contact Us: | Email |
Website: | |
| License #: | CBC1252357 |